ID: 3592753

Rue de Hannut - Maison unifamiliale

1350 Orp-Jauche
1350 Orp-Jauche
249.000€
  • 5 Chambres

  • 2 Salles de bain

  • 393m2

  • 300m2

  • 1 Place

Demander une visite
A VENDRE - NOUVELLE CONSTRUCTION (PASSIVE), 5 chambres, 2 SDB - vendue GROS OEUVRE ouvert...

Demande d'information/visite

Description

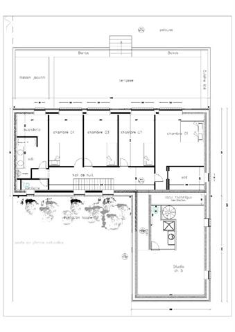
A VENDRE - NOUVELLE CONSTRUCTION (PASSIVE), 5 chambres, 2 SDB - vendue GROS OEUVRE ouvert située dans un petit village calme, proche des axes principaux, cette villa 3 façades se compose au rez de chaussée d'un hall, 1 bureau, 1 wc et 1 garage de 22m2 Au niveau rez de jardin, une grande pièce à vivre de 105m2 comprenant 1 grand salon, salle à manger, une cuisine ouverte sur les pièces de vies ainsi qu'une salle de jeux A l'étage, 5 grandes chambres, deux salles de bain, une salle de douche et un grenier aménageable Grande terrasse plein sud de 85m2 avec piscine/jacuzzi construit en homogénéité avec la conception même de la terrasse offrant une vue imprenable sur les champs et le vieux village. Aucun vis à vis L'ensemble des raccordements eaux, électricité,citerne eaux de pluie 10.000 litres et égouts sont réalisés. Idéalement située pour une famille avec enfants (commerces,écoles, gare et autoroute à moins de 7 minutes) Grâce a ces grands volumes ouverts, vous pourrez la configurer selon vos envies. Possibilité d'y créer un espace professionnel. Garage ainsi que places de parking devant la maison! Travaux estimés à 95.000€ (devis disponibles).
Pour de plus amples informations, contactez-nous au 0472/626.027 ou sur mb@immo2gether.be

En chiffres

  • Toilette(s) : 2
  • Salle(s) de bain(s) : 1
  • Chambre 1 : 30 m²
  • Chambre 2 : 19 m²
  • Chambre 3 : 14 m²
  • Chambre 4 : 14 m²
  • Chambre 5 : 14 m²
  • Nbre de terrasse(s) : 1
  • Salle de séjour : 77 m²
  • Cuisine : 32 m²
  • Orientation de la terrasse 1 : sud

Equipement de base

  • Salle de bain : douche et bain

Bâtiment

  • Année de construction : 2015
  • Nombre de garage : 1
  • Parking intérieur : oui
  • Parking extérieur : oui
  • Parking(s) intérieur : 1
  • Parking(s) extérieur : 4

Divers

  • Buanderie : oui

Type de matériau & évaluation

  • Type de revêtement de sol : chape

Spécificités terrain

  • orientation du bâtiment : sud
  • Exposition de la façade avant : nord

À proximité

  • Ecoles : oui
  • Centre sportif : oui
  • Autoroute : oui

Cadastre

  • Section : B
  • Numéro : 482N
  • Surface (ha/a/ca) : 10a78ca

Domaine juridique

  • affectation urbanistique : Habitation

Caractéristiques Principales

  • Surface de terrasse 1 : 20 m²

Titre de l'annonce

  • A VENDRE - Maison 3 façades - terrain 11 ARES - superficie habitable 393m2 - GROS OEUVRE OUVERT
Laura Basagni
Laura Basagni
1767777790
We have recently purchased our first property in Brussels and Morgan was a fantastic partner throughout the entire process. As expats, the support he provided made all the difference and ensured the process went as smoothly as possible. We would definitely work with Morgan again for any future real estate projects in Brussels. Thank you Morgan!
Danielle Wauthy
Danielle Wauthy
1766135867
Agence très sérieuse et efficace. Ma maison à Meise a été vendue en 2 jours.Danielle Wauthy
Daphné Sneessens
Daphné Sneessens
1764231084
Accueil et professionalisme +++ au rendez vous. Nous avons été parfaitement guidé et soutenu dans nos démarches par M Bonnet ce qui a permis une vente rapide et aux meilleures conditions. Merci pour l’efficacité de la prise en charge.
Bruno De Cooman
Bruno De Cooman
1764093963
Bonjour à tous ! Ce message pour exprimer notre gratitude vis à vis de Mr Morgan Bonnet qui s'est montré très réactif (même le dimanche !) tant pour l'organisation des visites que pour les réponses à nos questions lors de notre achat immobilier. C'est une personne agréable relationnellement et d'un grand professionalisme. Nous le recommandons vivement.
Dimitri Savov
Dimitri Savov
1762023312
We have worked with Morgan already second time and everything went great again! We recommend the agency, very efficient and friendly !
Alice Di fiore
Alice Di fiore
1759699176
Je recommande vivement . L’agence est très professionnelle , le contact est très bien passé . Le bien a été bien évalué et s’est très vite vendu . Vous pouvez sans hésitation faire appel à eux .
Eva Devricis
Eva Devricis
1757604925
Que dire de Morgan, que c’est un super vendeur, très professionnel, réactif, très attentif. Toujours souriant et disponible, d’une efficacité remarquable. Merci également à l’amie qui nous l’avait conseillé et que je vous le conseille également.
Hélène Petkidis
Hélène Petkidis
1757529437
J’ai eu l’occasion de travailler avec Morgan de Immo2gether pour la vente d’un appartement. Son professionnalisme et ses qualités humaines ont vraiment fait la différence : calme, à l’écoute, et organisé.La collaboration et le contact ont été faciles. Il fait des feed back fréquents quant aux visites. Morgan ne met pas de pression inutile, il laisse le temps de réfléchir et garde toujours un aspect humain et réaliste dans son approche.Il a toujours été de très bons conseils et connaît très bien le marché immobilier .Un grand merci à lui et son équipe tout aussi professionnelle pour l’accompagnement de qualité, que je recommandons vivement !
Kelly de heyn
Kelly de heyn
1755946427
Mathieu Belleflamme est un excellent agent immobilier ! Il est à l’écoute, très professionnel et toujours disponible pour répondre à mes questions. Son accompagnement a été clair, rassurant et efficace du début à la fin. Grâce à lui, toutes les démarches se sont passées en toute confiance. Je recommande vivement ses services à toute personne qui recherche un agent immobilier sérieux et compétent !
Aurelie Aerts
Aurelie Aerts
1755002133
Agent immobilier particulièrement remarquable, notamment grâce au professionnalisme de Mathieu. Hautement recommandé pour sa réactivité, la qualité des informations fournies, et in fine pour le résultat : avoir trouvé des locataires fiables. Un service exemplaire du début à la fin.
Arezoo Salehi
Arezoo Salehi
1754740599
Service excellent ! Je vous recommande vivement cette agence.
Clara Maricosu
Clara Maricosu
1753779688
Un grand merci à Morgan pour son professionnalisme !Toujours disponible, patient malgré un dossier complexe, et d’une réactivité exemplaire.Je recommande vivement !
Elodie De coninck
Elodie De coninck
1753351714
Morgan nous a été recommandé par une connaissance, et nous n’avons pas été déçus. Son travail a été rapide, efficace et très professionnel. L’appartement a été vendu en un temps record. Nous recommandons vivement Immo2gether pour la vente de vos biens. Nous sommes pleinement satisfaits de leur accompagnement.
Aurélie Van de Steen
Aurélie Van de Steen
1752486296
Super expérience ! Appartement parti en moins de 48h. Agent super impliqué et très professionnel. Au top.
Yoann Zimmer
Yoann Zimmer
1747737263
Sơn Nguyễn
Sơn Nguyễn
1741083146
très satisfait du service
Lionel Desclez
Lionel Desclez
1737573454
Geoffrey vehent
Geoffrey vehent
1737560289
Je tiens à partager mon excellente expérience avec Morgan. Grâce à son professionnalisme, son efficacité et sa réactivité, toute la transaction s’est déroulée de manière fluide et sans accroc. Il a su répondre à toutes mes questions et a toujours été disponible pour me guider à chaque étape du processus. C’est rare de tomber sur un agent immobilier aussi compétent et sérieux. Je recommande vivement ses services à quiconque recherche un agent de confiance. Un grand merci, Morgan, pour ton super travail !
Dominique Van Leemputten
Dominique Van Leemputten
1734911253
Très à l'écoute, donne de bons conseils, disponible, très bon travail globalement et vente rapide. Merci
Gwenael Bultelle
Gwenael Bultelle
1733481822
J'ai contacté Morgan via une recommandation pour la vente de notre appartement. Habitant à l'étranger, nous avions besoin d'une personne de confiance à qui on pouvait déléguer la vente à 100%. Et Morgan a été incroyable: gentil, transparent, professionnel et tellement efficace! Alors à notre tour de le recommander vivement! Dommage qu'il n'y ait pas une 6ème étoile, il l'aurait méritée.
Myriam Vanroy
Myriam Vanroy
1732622878
Agence à recommander ! Merci à Dominique pour son professionnalisme, son dynamisme et sa disponibilité.
Sebastien Vacca
Sebastien Vacca
1731767687
Super agence! Je recommande vivement.
krikor mouradian
krikor mouradian
1725988655
Un grand merci à Morgan pour son professionnalisme, sa réactivité et sa gentillesse ! Le bien a été vendu rapidement et a un prix très correct grâce (entre autres) à une excellente sélection des candidats acheteurs.Nous avons déjà travaillé plusieurs fois avec cette agence, sur plusieurs années et le service est toujours au top !
Lei Zhang
Lei Zhang
1725977091
The company is very professional! They quickly did all the necessary and found the clients for me in a couple of weeks. I appreciate their expertise and service a lot.
Kaliopi Méris
Kaliopi Méris
1725392945
Je n'aurais pas rêvé mieux comme agent immobilier (Morgan). Hyper professionnel, ponctuel, à l'écoute, rassurant et le must, toujours POSITIF. Je n'ai pas levé le petit doigt, Morgan a géré la vente de mon appartement de A à Z, de plus, il a vendu en une journée. Je vous recommande Immo2gether à 1000% les yeux fermés. Merci pour cette belle expérience avec vous❤
Marta Bielenica
Marta Bielenica
1725059569
Équipe jeune, dynamique et efficace. À disposition de ses clients et très réactive. On a travaillé ensemble à plusieurs reprises et on a toujours atteint nos objectifs. À conseiller.
ousnoop
ousnoop
1724487039
Merci à Mathieu et Morgan d'avoir été là. Même après la vente de la maison, j'ai pu compter sur eux à chaque fois que je les ai sollicités. 🤝🏼
Olivia Trapenard
Olivia Trapenard
1724242990
Super service!Nous avons été en contact avec Immo2gether dans le cadre d'un achat d'appartement, et Morgan a été très serviable, très réactif par rapport à nos questions et très professionnel.Je recommande !
Armand Diallo
Armand Diallo
1724221478
J'ai récemment travaillé avec Morgan Bonnet pour la vente d'une propriété, et j'en suis très satisfait. Morgan s'est montré professionnel et attentifDisponible et réactif, il m'a accompagné tout au long du processus avec une grande expertise. Son approche humaine et bienveillante a rendu l'expérience beaucoup plus agréable.Je recommande vivement Morgan Bonnet pour son professionnalisme et sa fiabilité.
Jessica Di Rosso
Jessica Di Rosso
1724178584
Fiables, disponibles, efficaces, voici comment je qualifierais les membres de l’équipe de Immo2gether! Je recommande vivement !
Dimitier Savov
Dimitier Savov
1724174142
Very good agency and support during the whole real estate purchaise process !Definitely recommend!
Mouhamadou Lô
Mouhamadou Lô
1724172969
Service parfait, de vrais experts, très réactifs, compétents et efficaces
Emmanuelle Detavernier
Emmanuelle Detavernier
1724160392
Nous avons fait appel à l'agence Immo2gether pour la vente de notre appartement. Nous avons obtenu une réponse rapide pour l'estimation, et l'appartement a été mis en vente et vendu très rapidement. M. Morgan Bonnet a fait preuve d'un grand professionnalisme. Il était disponible pour répondre (très) rapidement à toutes nos questions et pour régler les différentes procédures administratives. Nous le remercions pour son efficacité, son écoute, sa disponibilité et son sourire.
Dejet Annick
Dejet Annick
1724157713
Professionnalisme, excellent suivi et amabilité au top. Que demander de plus lors d’une vente. Nous sommes très satisfaits et recommandons sans hésiter +++ .
Amélie G
Amélie G
1724157481
Une agence dynamique, hyper efficace et proche de ses clients. Ils s'occupent de tout et ne reviennent vers vous que si ils sont sûr à 100% de leurs acheteur. J'ai vendu mon bien en moins 2 mois sans rencontré aucun souci. Si un jour je dois vendre ou acheter je reviendrais vers eux.
Catherine Mollon
Catherine Mollon
1724157115
Équipe efficace,sympa et bon suivi.
Zerbini Tony
Zerbini Tony
1724154619
Excellent travail et vente rapide
N.J.
N.J.
1707850167
Professionnalisme , rapidité et efficacité ... que demander de plus ?Et Merci pour les conseils !( ps : je recommande vivement )
Theodette Mukaroni
Theodette Mukaroni
1692117643
Monsieur Belleflamme Mathieu a été formidable lors de la vente de notre bien immobilier. Il a été clair dans ses explications et très honnête dans les conseils donnés .Il nous a accompagné, encouragé jusqu'au bout. Très professionnel, dynamique et disponible.Bref, il est un excellent élément pour le travail qu'il fait. Je le recommande à qui aurait besoin de mettre en vente son bien immobilier.
Jean Marie Karemera
Jean Marie Karemera
1692117346
Mr Belleflamme Mathieu nous a accompagné avec une grande conscience professionnelle dans la vente de notre maison.Sa disponibilité, son écoute et ses conseils nous ont permis de vendre notre maison rapidement.
J.C.
J.C.
1690715583
Je vous recommande chaleureusement Mathieu Belleflamme, car au delà de proposer des services qualitatifs que l'on ne peut retrouver partout ailleurs, l'acceuil et le suivi à la clientèle ont été tout simplement exceptionnels ! Mathieu, qui s'est occupé de mon projet, a investi énormément de temps et d'énergie pour rechercher avec moi le bien dont je rêvais et grâce à ses compétences, à sa patience et à son implication, ce rêve est devenu réalité !Donc si comme moi vous êtes un client exigeant, qui cherchez à être parfaitement accompagné dans une recherche minutieuse et, juste, n'hésitez pas à aller pousser sa porte.À très bientôt.En lui souhaitant tout le meilleur pour son parcours professionnel.Merci pour tes nombreuses disponibilités.💯⭐⭐⭐⭐⭐
Nans G
Nans G
1688625357
Acheter une maison, c'est une démarche qu’on ne fait pas tous les jours et qui peut être très stressante. Mais Mathieu de immo2gether nous a guidé et aidé à travers tout le trajet de manière bienveillante. Même après la signature de l’acte! Il était toujours disponible, et prêt à aider. Il nous a soutenu et aidé tant pour des conseils pratiques que juridiques. C’est une personne compétente et passionnée par son métier !Nous avons reçu chez immo2gether un service humain et personnalisé. Nous nous estimons chanceux d’avoir pu collaborer avec eux pour l’achat de notre maison.Merci beaucoup!
Carole Janssen
Carole Janssen
1688374035
Merci beaucoup à Mathieu pour son aide précieuse et sa gentillesse pour la vente de notre maison.Toujours souriant et disponible pour répondre aux questions, je le recommande les yeux fermés!
Julie Van den Putten
Julie Van den Putten
1682279850
J’ai confié la vente de mon appartement à Morgan alors que je n’habite plus en Belgique.En plus d’être vendu en moins de 3 semaines dans un climat économique difficile, il a géré tous les aspects logistiques, administratifs et autres de A à z.Ne pouvant être présente, il a pris le dossier entièrement à sa charge sous tes aspects.Toujours disponible et à l’écoute, le soir comme le we.Il a fait de cette vente une réussite.Je ne peux que vivement recommander cette agence qui fournit un travail fabuleux.Digne de confiance avec un sens commercial affuté, il maîtrise l’immobilier sur le bout des doigts.Avant de lui confier la vente, je lui avais confié la location de mon appartement avec exactement le même travail.Bravo et merci !
Next Reviews
×
js_loader